24小时检测量1000
- 6000管
支持20:1.10:1混采检测
锐途医疗移动核酸快检车采用依维柯底盘改装而成,可以实现现场采样、现场检测、现 场出结果,车辆抵达现场后2分钟即可完成部署,可以做到随到随采,随采随检。
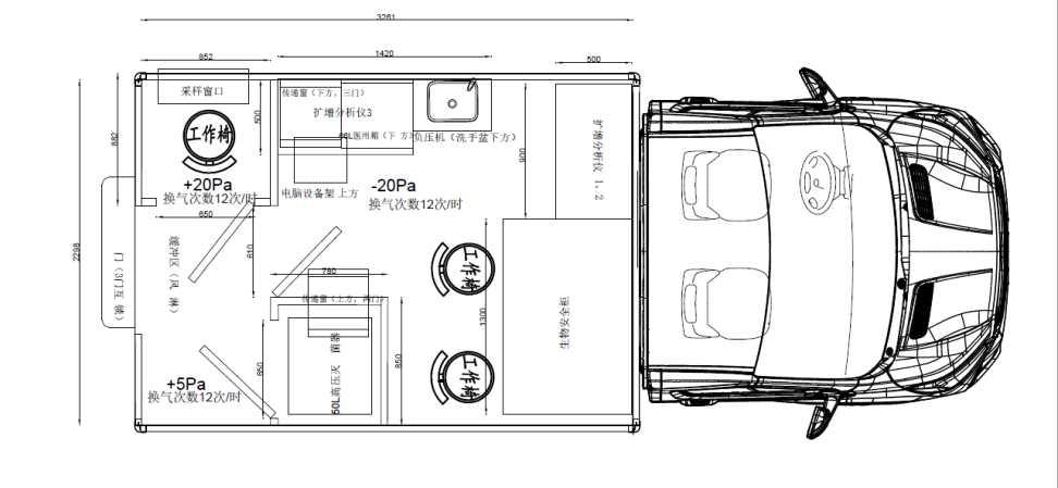
车辆分为核酸采样区、检测扩增分析区两个区域,可以定制洗消区。每台车24小时可以实现 1000 - 6000管的单检,支持20:1、10:1混采检测,46分钟即可出结果,实验过程中仅需1人即可 完成操作,极其适合社区、**、车站、码头、机场等社会公共场所驻点检测。
产品特点
◎高通■: 1000-6000管(24 小时)
◎全自动检测;检测时间46min,检测速度快,实现了随到随检
◎车载管理系统、轻量化全自动LIS系统与**/实验检测室无缝对接人力需求少,每车配置3-7人 ◎多功能:新冠病毒、呼吸道宀,原体、泌尿生殖系统、肠道病毒、血液传播疾病、食源性疾病................. .....
◎适用于社区、**、车站W多种场景,C1照即可驾驶,无需特殊驾照,每车3人即可操作
◎满足“P2+”实验室要求
车内布局

细节展示

设备清单
6米快检核酸检测车24小时6000管设备清单
|
序号 |
设备 |
品牌 |
型号 |
单位 |
数量 |
|
1 |
6米蓝牌核酸检测车 |
程力 |
咪 |
台 |
1 |
|
2 |
生物安全框-惡双人 |
博科 |
11228BBC86 |
台 |
1 |
|
3 |
核酸快速检测全舍动PCR分-系 统 |
天隆 |
48E |
台 |
2 |
|
4 |
圖形可旋转匸降座椅 |
程力 |
定司 |
个 |
4 |
|
5 |
全消毒革通道=调移液器 |
大龙 |
10-50 ML |
1 |
|
|
6 |
全消毒w动日通道移液器 |
大龙 |
10-100 ML |
把 |
2 |
|
7 |
移液器支架 |
大龙 |
线性色 |
套 |
1 |
|
8 |
混匀仪 |
大龙 |
MX-M |
台 |
1 |
|
9 |
离心机 |
大龙 |
D1008 |
台 |
1 |
|
10 |
冰箱 |
漠柯想 |
YCD-265 |
台 |
1 |
|
13 |
电缆线(软罰5芯国标) |
程力 |
.定制 |
米 |
15 |
|
14 |
超低温跡护-低温地区适用 |
程力 |
项 |
1 |
|
|
15 |
UPS (支持三W、实验设备W转 3。分钟以二) |
佃童 |
.定制 |
套 |
1 |
|
16 |
UPS能源管理系统 |
仙童 |
宅制 |
套 |
1 |
|
17 |
UPS锂电池簇匸度电) |
仙童 |
定乏 |
千瓦时 |
1 |
|
18 |
M输服务(输■入公里数) |
车队 |
车队 |
公圭 |
1000 |
|
19 |
培训,备案、验收服务 |
程力 |
♦程力 |
项 |
1 |
|
20 |
技宗人员差旅 |
趕力 |
程力 |
项 |
1 |







在线咨询
联系人:
手机:
微信:
地址:湖北省随州市南郊平原岗程力汽车工业园


